你好,欢迎光临北京多彩猫装饰工程设计有限公司 | 服务热线:0527-81888563 15250750826
您的当前位置:首页 » 案例赏析 » W-两个世界
W-两个世界

W-两个世界

2020-09-01 10:55:16
  • 装修风格 :现代
  • 装修户型 :别墅
  • 项目面积 :㎡
  • 设 计 师 :
  • 工程造价 :20-30万
  • 装修模式 :半包服务

W-两个世界




每一次更新都代表着另一个“未完成”的终点


平行的时空里,交错的空间站点,是设计师与户主的相遇的纽带,历经20天的时长,多次的磨合与调改,它即证明了设计师所扮演的应当是一个不断自我修正的非静止的角色,将原本业主的空荡冰冷的建筑物,进行加减法的运行,将所有的一切,物品、氛围、生活方式,都转变成依照着一样的美学引力,安静而合理地运行着。

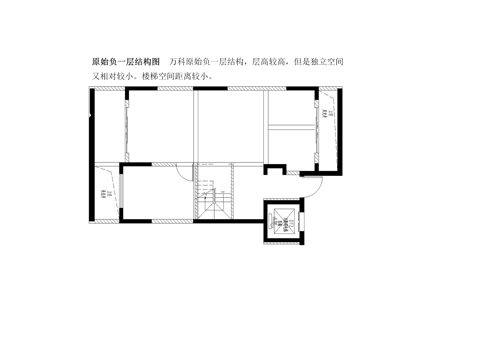
▼负一层分析



▼夹层分析



▼一层分析



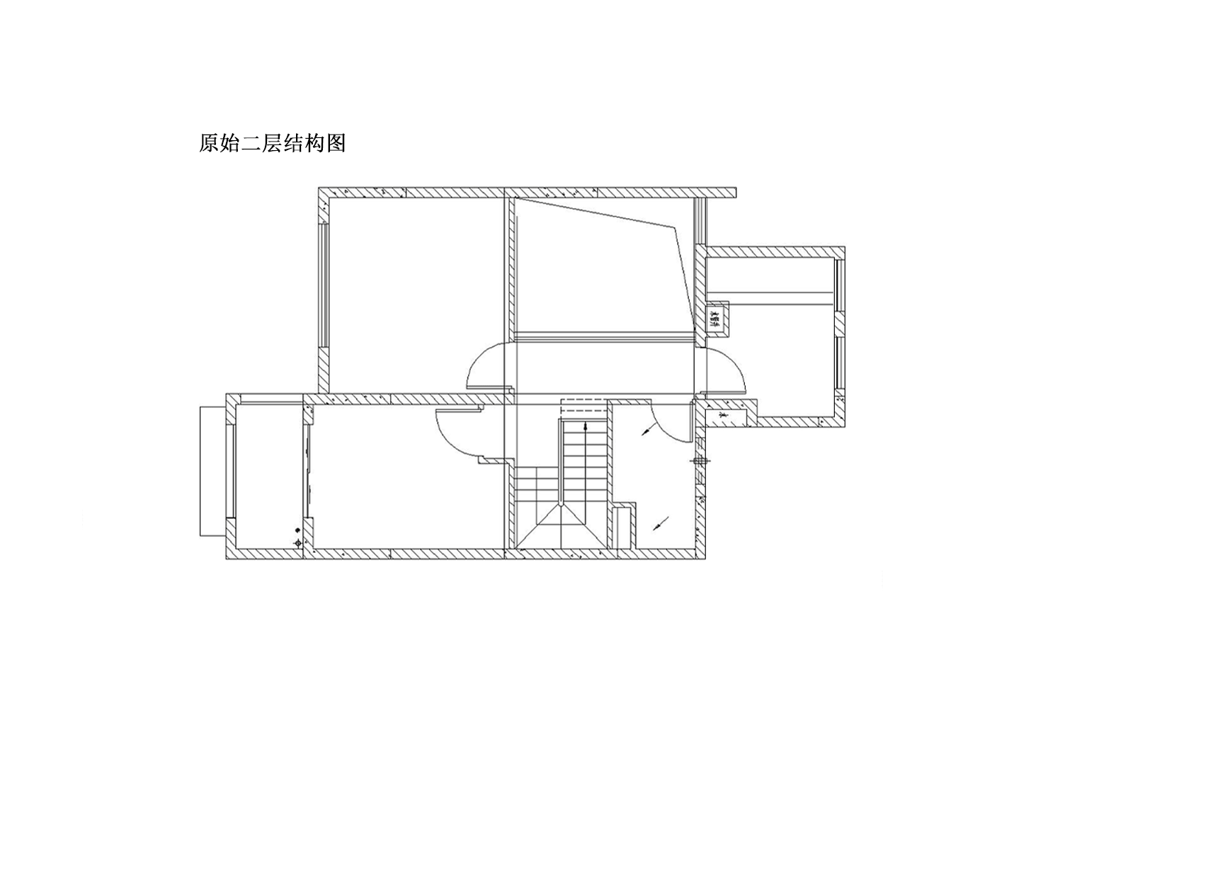
▼二层分析





▼设计理念






▼负一层影音活动室与花房设计师以户主女儿的视角,去繁从简,将自然元素融入到空间中,自然与时尚接轨,打造独特的空间氛围。玄关设置L型悬挂式鞋柜,将室内外的物品区分,增加区域的通透感。负一层的顶部采用小孔成像的光照原理,将上层的光借到下层空间,丰富空间氛围的同时,解决了采光问题。





▼负一层影音活动室与花房 花房与影音活动室之间通过高低的空间搭配,相互交叠联通的空间距离呈现出模糊的多义性。穿梭于其中过程,就是走过休憩与工作的深度。





负一层影音活动室 原有的裸露在外面横梁进行木饰面的包裹,设置秋千座椅,给生活增添少许的趣味性。顶部采用圆滑的边缘处理方式与木饰纹理的横梁冷峻质感,自然的木纹与石材相结合,增添空间的几何构成元素。





▼负一层衣帽间 设立独立式衣帽间, 可以使其美感与实用兼具。独立衣帽间拥有防尘好,储存空间完整,并提供充裕的更衣空间。





▼夹层休闲区 同色系的空间维度降低色彩的纯度,给人以安定、平稳的感觉的同时,亦增强空间的稳定感。休闲区的门洞安全设置延续跃层扶手的设计,顶面采用简洁的线条营造出朴素、宁静的室内气氛。





夹层厨房  “一人巧作千人食,五味调和百味香”结合室内其他空间设计,让整体室内空间线条更流畅,工作平台采用岛式设计,相较于传统的厨房,岛式厨房格局相比更加温馨及人性化。





▼夹层餐厅就餐区域,延续厨房空间,家具选用温厚的黑色座椅,自然传达出舒适优雅的会友氛围,将细致浮于顶面,细细雕琢,强化空间视觉效果,天地方圆,一寸一景,里外景致纳入室内,光的变化如同剪影在更替循环,它既是会餐的地方,也是休闲静心的绝佳之地。


▼跃层空间




▼一层茶室  茶室地台是将原有厨房的顶部抬高,空间层次更加丰富,看似简洁淡雅的基调,实则蕴含了主体空间的空间氛围,置身其中回味悠长。



▼一层茶室  简洁的线条异形的装饰,洁白的墙面与暖色的灯光相互融合,家的氛围更加温暖。





▼一层客厅打通空间的距离感,简单、纯朴的色彩搭配,但简单却不乏深度,电视背景墙采用最简洁的处理方式,构建和谐创新的室内空间设计,赋予其独有的性格。

▼局部-楼梯

楼梯采用木质悬空踏步,将自然的元素融入其间,简洁明快又高级。

▼局部-天花


采用投影将抬头仰望如纱是星河坠落,大大小小,新罗棋布的镶嵌着钻石,又在这纱撒上钻石的粉末,然后铺在顶部的天花上。

现在越来越不缺“好看”的设计,好看这件事早就有了套路——越来越壮观的建筑,越来越雷同的室内设计,还有一大堆除了看上去很美也不知道作何用的所谓的“设计”。项目的每一次更新都代表着另一个“未完成”的终点,这也是家庭成员所钟爱的一点:他们的品味和需求一直在发生变化,而这也将体现在室内丰富的饰面、材料和家具细节上,设计的搭配展现了具有现代感的独特魅力。

机构|Company:北京多彩猫装饰设计

设计|Designer:徐蒙蒙

编辑| Editor:徐梦

项目地址|Project Address:万科





我家按此效果装修多少钱?
m2
已有95名业主预约

热点更新查看更多

最新案例查看更多

预约报价

© 2017 北京多彩猫装饰工程设计有限公司 版权所有 苏ICP备2021022353号-1 技术支持:宿迁市科瑞特网络科技有限公司

地址:宿迁市富康路霸王商城东门南侧公交站台旁 客服电话:0527-81888563 15250750826