你好,欢迎光临北京多彩猫装饰工程设计有限公司 | 服务热线:0527-81888563 15250750826
您的当前位置:首页 » 案例赏析 » 粲然
粲然

粲然

2020-09-01 15:08:38
  • 装修风格 :现代
  • 装修户型 :三居
  • 项目面积 :㎡
  • 设 计 师 :
  • 工程造价 :10-15万
  • 装修模式 :半包服务

粲然



光与空气自由流动,人与空间和谐舒展

这个外表色彩素淡平和,却有着醒目的棱线和形态。内部色系非常一致,将淡色的运用在整个空间中,这时跳色的搭配斑缔又跳了出来,让人的视线在空间之外有了着落。空间舒适,节点轻盈周到。

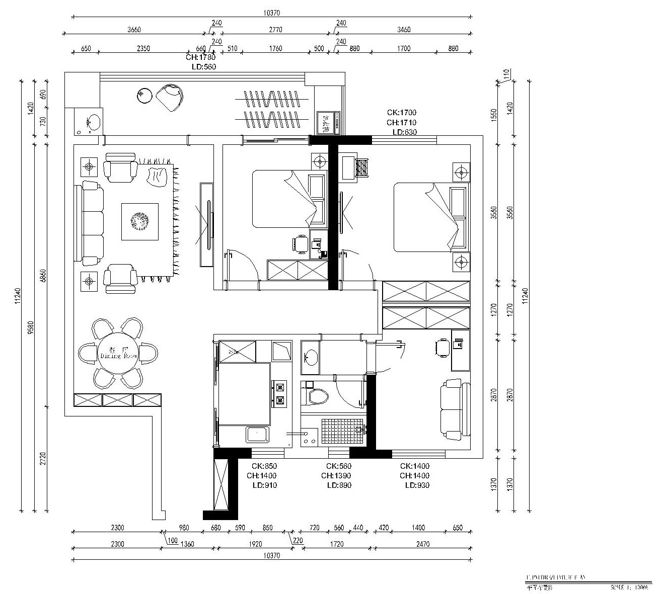
平面布置图


▼客餐厅  洁白的空间点缀着酒红色的装饰物,增添了空间的活力。




▼餐厅餐厅与厨房采用玻璃移门的空间隔断,即能够视觉上的空间感不会缩减,实际上却又可以将两者的空间分成独立的个体。

▼卧室  卧室的主体色调延续了主体的色调,洁白的床与空间相互映。使得空间更加的整洁与安逸。


▼广角图







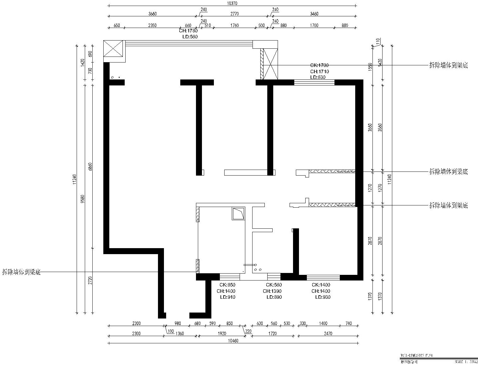
▼墙体拆除图



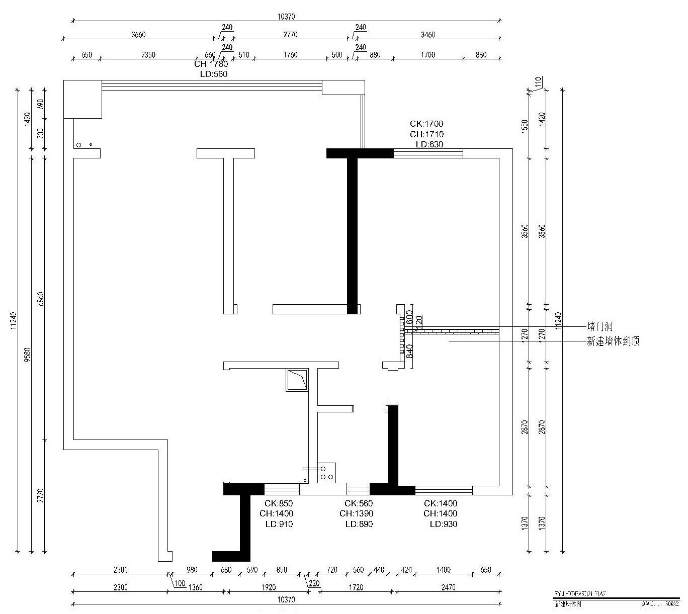
▼新建墙体图

动人往往的不是奢华,也不是奇异,而是舒适。

机构|Company:北京多彩猫装饰设计

设计|Designer:杜颖

编辑| Editor:徐梦

项目地址|Project Address:幸福学府


我家按此效果装修多少钱?
m2
已有95名业主预约

热点更新查看更多

最新案例查看更多

预约报价

© 2017 北京多彩猫装饰工程设计有限公司 版权所有 苏ICP备2021022353号-1 技术支持:宿迁市科瑞特网络科技有限公司

地址:宿迁市富康路霸王商城东门南侧公交站台旁 客服电话:0527-81888563 15250750826