“追求自己想要的,而不是追求别人认为的最好的."
设计的存在不仅是解决空间和美感,更是全方位的解决落地过程中的每一个细枝末节
抛开喧哗的城/
打造宁静有温度的家/
两人相伴静看春暖花开/
感悟日月星辰/细品春夏秋冬/
岁月静好君长伴/
韶华倾尽两相依
▼设计说明 DESIGN SPECIFICATIONS
喜欢简洁利落的设计,对于家的期待,希望家的环境是自由惬意温馨的,不需要繁冗的装饰。在结束忙碌了一天的工作回到家可以惬意的享受家带来的自由温暖,家便是他们身体和心灵的充电站
▼客厅 / THE SITTING ROOM
风格追求形式简约,展现质感本身。简单来说该是“留白”:留,意为空白大胆,重点简洁;白,就是对于质感的高度要求,让质感本身发光。理念就是以人为本,强调“生活”。
闲暇之时,靠在软体沙发上,随意团坐,只是放空发呆,也是一种浮生偷闲的舒畅。
▼餐厅 / DINING ROOM
餐厅作为客厅的空间延伸也延续了统一的色调。一边是宽敞包容的客厅,一边是通透明亮的餐厅,既自由开放又互相关联。家是承受我们情绪的载体,用温柔的姿态包容。木与石,黑与白,回归家的烟火气。
▼厨房 / KITCHEN

▼主卧室 / MASTER SITTING ROOM(方案一)

▼主卧室 / MASTER SITTING ROOM(方案二)

▼次卧室 / MASTER SITTING ROOM


▼卫生间/ TOILET


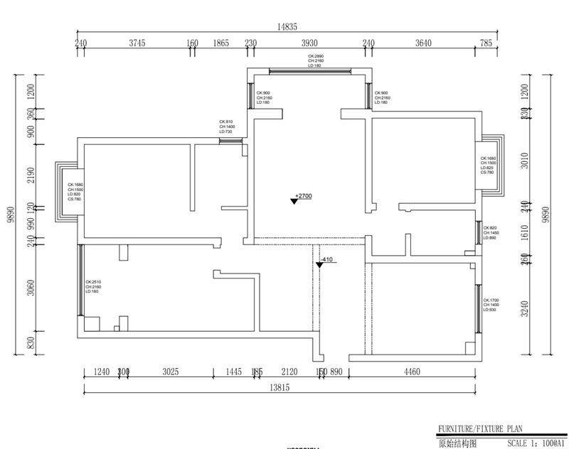
▼原始结构图

▼平面布置图

项目信息
Project information
项目地址:嘉汇▪御景园
Project address:Jiahui▪Yujingyuan
设计团队:北京多彩猫装饰设计
Design team: DCM
主创设计师:徐蒙蒙、刘洋
Lead designer: Xu mengmeng Liu yang