拾 光 | 一天一剪影,一生一流年
“追求自己想要的,而不是追求别人认为的最好的."
设计的存在不仅是解决空间和美感,更是全方位的解决落地过程中的每一个细枝末节。
客厅LIVING ROOM
窗外繁华,热闹,而沉默的心里,是善良,是慈悲,是默默的沉淀,是默默的关注。
沉默的姿态,不曾坠落,也不曾沉沦,静默如水,是对生命不惊不扰的虔诚
餐厅DINING ROOM

走道 ENTRAY

一束花朵,一张相片,都是善待生活的写照。

将实用性与艺术性有效结合,犹如音符在跳动,哪怕是一日三餐,也要过得妙趣横生。
卧室 BEDROOM

热爱生活的人,总是用细节装点一地鸡毛。

在这个温馨的私密空间里,尽可能的多宅一些时间,一起“浪费”美好的时光,让生活慢下来,能感知到美,也能够在随性自由、毫无拘束的空间布局里,随时感受到让人冷静下来的温和气氛!


原始结构图

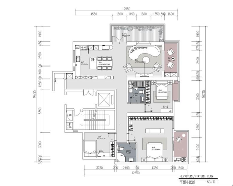
平面布置图

项目信息
Project information
项目地址:丽都水岸
Project address:YunheLanwan
设计团队:北京多彩猫装饰设计
Design team: DCM
主创设计师:徐蒙蒙
Lead designer: Xu mengmeng