北京多彩猫装饰公司宿迁分公司
建筑环境

原始结构图
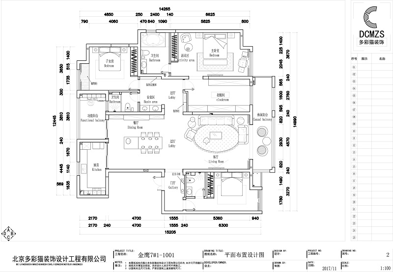
平面设计图
主题色彩

门厅的水彩荷,荷在我们中国的寓意是出淤泥而不染,理解为我们都要保留自己的初终与那份纯真。细语流年浅唱岁月,将天然的木饰面、燕尾弧线、腊梅花等将这些中式元素装饰于家中,只愿寻一片嫣然,将美好的一切都凝固在这里……
会客厅运用框景、借景等造型方式,画中山,鸟儿鸣,意有所极,梦亦同趣,沉稳的木色,纯净自然的质朴之美,以灰、白、米黄为基准色调,营造一份淡然的东方韵味;一步一景致,移步见天地。
借山、借水、借四季,借景、借光、借鸟鸣,以借来表示对自然的尊敬;舍弃繁复的设计造型,运用点线面的造型让空间有了无限延深感,客厅配搭一珠金灿灿的植物和沙发靠背的连绵山脉及原木造型墙板,细细品味间,犹有一种文人雅士的清风气质,温柔而敦厚。
餐厅装饰酒柜、青山挂画、极具视觉冲击力的中岛、有那一抹翠绿,它运用中式的的造型元素又以开放式的活动空间展现,其实在当下的社会中大人们的工作压力,孩子的学习压力,被排的满满当当。有时候我们会问时间去哪里了,那就让我们在有限的时间陪陪家人和孩子,敞开式的空间设计会不会给你带来不一样的生活体验呢?
生活的乐趣或许就是一家人在敞开式的餐厅做着手工看着孩子在身旁品着美食,并夸赞世间最好吃的美食就是妈妈做的饭。仿佛听到了一家人欢声笑语!
寄托怀旧情绪的新中式家具,电视墙的天然石材和天然木饰面自然融合,石材让我们想到了山,木让我们想到了林,自古有山的地方就有林也正好和沙发背景的连绵山脉相呼应,将古意与主人的心绪融合。温暖的窗边,惬意的角落,处处皆风情,细水流长的意境正如家的故事。
他说生活里要有一点灵气。与书为伴,他保留浪漫,参悟禅语,他爱东方的留白,
品一杯茶,百味尽生。小酌尤胜一晌贪欢。曾渴望命运的波澜,而今才发现,人生最曼妙的风景,是内心的淡定与从容。
来到这动静分离的过道区,过道旁嵌入极具中式情怀的装饰柜,还有通过面盆上方的镜面里的装饰层板和腊梅花,在这不太大的过道空间,有没有一种移步一景的感觉。在这半开放的空间,有大人们荣誉摆件还有心爱孩子的荣誉装饰摆件,腊梅香自苦寒来,这是生活信仰的传递也是力量的传递。就像这面盆大人使用的同时充分考虑了孩子的使用高度,这就是爱的传递!
简单的色彩与柔软布艺是主人对质朴的追求,把所有的繁复遗忘。床边一套单人沙发,可静静享受独处的精彩。
茶烟映山起,浅香伴枝摇,清水沥茶中,享半晌悠闲。
心若逍遥,于居中亦能看遍夕阳山丘。

北京多彩猫装饰公司宿迁分公司.装饰 .装修 .装潢 .设计