你好,欢迎光临北京多彩猫装饰工程设计有限公司 | 服务热线:0527-81888563 15250750826
您的当前位置:首页 » 案例赏析 » 在时光中盛开 (恒开滨河城)
在时光中盛开  (恒开滨河城)

在时光中盛开 (恒开滨河城)

2018-07-02 12:13:21
  • 装修风格 :美式
  • 装修户型 :三居
  • 项目面积 :㎡
  • 设 计 师 :
  • 工程造价 :8-10万
  • 装修模式 :半包服务

时光盛开--恒开滨河城

北京多彩猫装饰设计公司宿迁分公司



自由与舒适,

随意但不随便,

休闲但不懈怠,

尊重风格,

但不拘泥于风格 。


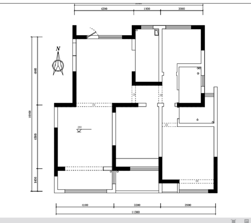
原始结构图

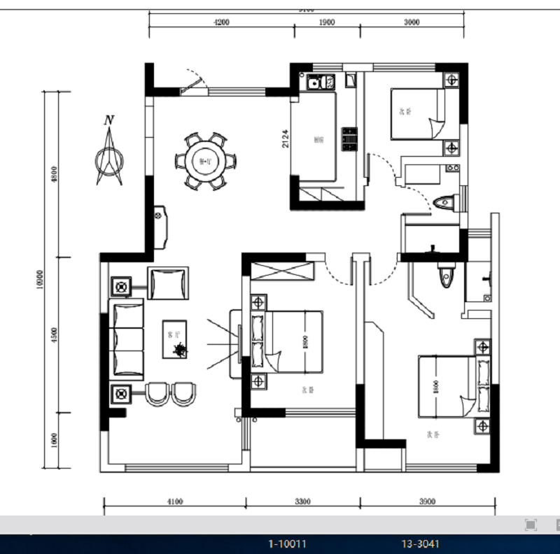
平面布置图

效果图


我们走过很多路,看过很多风景,
却发现最美的风景就在自己身边。
我们付出了很多,得到了很多,
却发现品质的生活,不需要金钱的堆砌,不需要奢华的投入。
我们经历了很多,却发现最愉悦的生活是创造梦想。
我们认为每一个为梦想努力的人都值得拥有更好的生活。
我们认为每一个关于家的梦想都应该被温柔对待。

扫描二维码  关注多彩猫

北京多彩猫装饰设计公司宿迁分公司.  装饰 . 装潢 . 装修 . 设计



我家按此效果装修多少钱?
m2
已有95名业主预约

热点更新查看更多

最新案例查看更多

预约报价

© 2017 北京多彩猫装饰工程设计有限公司 版权所有 苏ICP备2021022353号-1 技术支持:宿迁市科瑞特网络科技有限公司

地址:宿迁市富康路霸王商城东门南侧公交站台旁 客服电话:0527-81888563 15250750826