
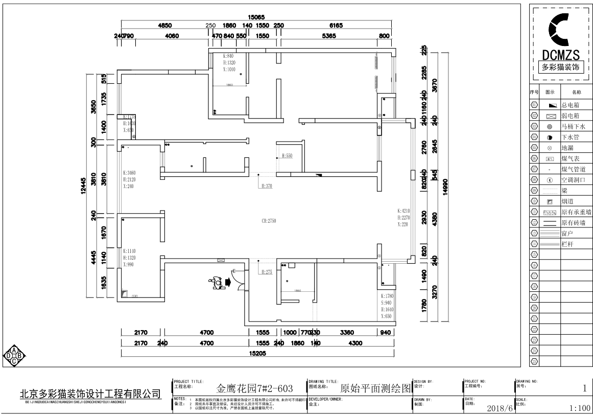
原始结构图
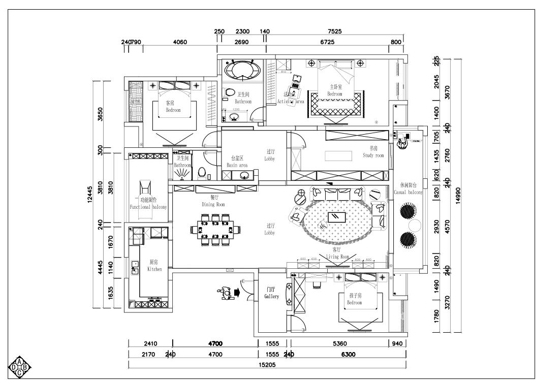
平面设计图
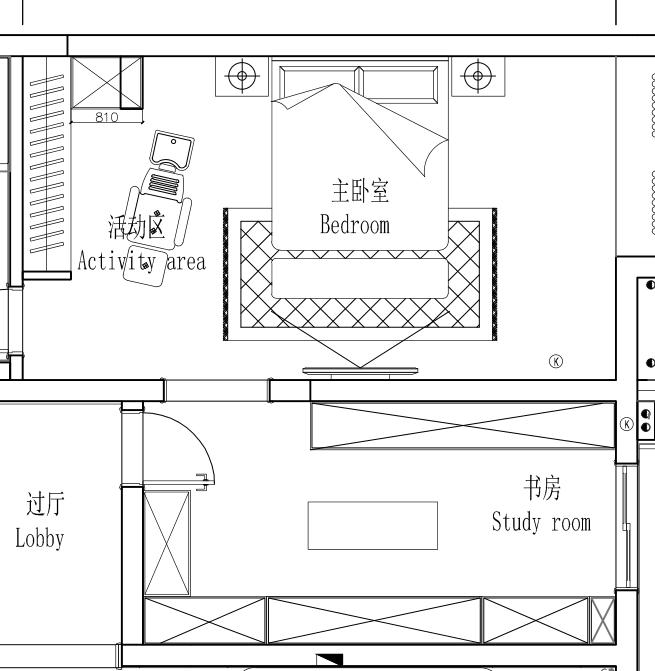
主题色彩
卧室的清蓝色,让整个空间通透清凉
北京多彩猫装饰设计公司宿迁分公司 . 装饰 . 装修. 装潢. 设计