你好,欢迎光临北京多彩猫装饰工程设计有限公司 | 服务热线:0527-81888563 15250750826
您的当前位置:首页 » 案例赏析 » 生活的样子 马赛公馆2#505 现代
生活的样子     马赛公馆2#505     现代

生活的样子 马赛公馆2#505 现代

2018-08-29 11:36:38
  • 装修风格 :现代
  • 装修户型 :跃层/复式
  • 项目面积 :㎡
  • 设 计 师 :
  • 工程造价 :10-15万
  • 装修模式 :全包服务

--------------------------------关/于/屋/主---------------------------------

你向往的生活是什么样?


是有一套属于自己可以随意折腾的房子
还是一个清晨日暮都在的爱人
或是一个有着奶声奶气的小影子

每个人对于幸福的定义都不一样
但是,幸福的人一眼就能看出来

“温柔”是我听过形容他们最多的词
言语、待人会让你感觉到自己被尊重

经过时间的沉淀,爱情与亲情变得没有界限
没有你我从此只有我们

年少时浪迹天涯也抵不过一句:回家吃饭

这就是我们向往的生活,有着烟火气的市井人家


------------------------设计解析-----------------------


所有的装修都绕不开“实用”
根据家庭成员去做方便每一个人的设计

孩子正是到了探索的阶段
就有了圆弧的石材设计、无障碍活动空间
男女主人独立的办公空间和隐私性

设计就是不仅满足现下需求,更考虑功能延展性


---------------------多彩猫装饰设计-----------------------


多彩猫装饰设计原始结构图

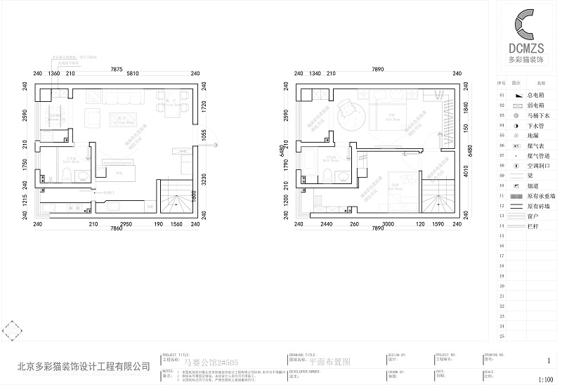
平面设计布置图

多彩猫装饰设计效果图

扫码看VR全景

北京多彩猫装饰装修设计公司宿迁分公司


我家按此效果装修多少钱?
m2
已有95名业主预约

热点更新查看更多

最新案例查看更多

预约报价

© 2017 北京多彩猫装饰工程设计有限公司 版权所有 苏ICP备2021022353号-1 技术支持:宿迁市科瑞特网络科技有限公司

地址:宿迁市富康路霸王商城东门南侧公交站台旁 客服电话:0527-81888563 15250750826