你好,欢迎光临北京多彩猫装饰工程设计有限公司 | 服务热线:0527-81888563 15250750826
您的当前位置:首页 » 案例赏析 » 金鹰7#904 现代轻奢
金鹰7#904  现代轻奢

金鹰7#904 现代轻奢

2018-10-24 11:46:21
  • 装修风格 :现代
  • 装修户型 :四居
  • 项目面积 :㎡
  • 设 计 师 :
  • 工程造价 :10-15万
  • 装修模式 :半包服务

那一刻,柴米油盐,
人间烟火,有人做饭,有人等候,
住了多年的房子还在那里,
没有荒芜,没有缺失。
所谓安全感,
无非就是有一个地方你始终想回去,
也能回去。
如果有一天,你累了、倦了,
等你告别了繁华,卸下了行李,
我们回家。
——裟愣双树《浮生物语・伍》

FOREWORD
说在前面
轻奢代表着对高品质生活的追求,精致而不繁复,优雅静谧的空间里时光也变得柔软轻缓,轻奢代表着对高品质生活的追求,精致而不繁复,优雅静谧的空间里时光也变得柔软轻缓。

业主需求:
希望打造一个时尚、舒适、温馨的三口之家!

ROOM SHOW
空间展示

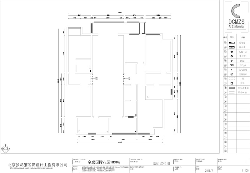
原始结构图


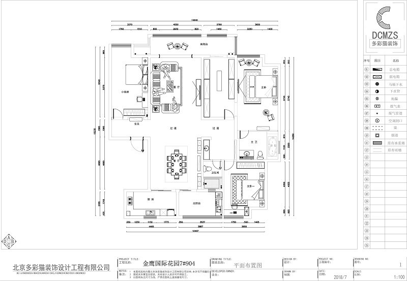
平面方案布置图

效果图


从每个细节处体现品质

从摆件中领悟出生活的智慧

给平凡的生活添砖加瓦

现代抽象装饰画,色彩鲜明,
点缀着空间
抽象是与宇宙的本质,
也是人类认识世界的一种视觉方式,
不同的人看就会感知到不同的世界呦。

钛金色简单明快的线条,
大气沉稳之气呼之欲出,

后现代风格的餐桌、餐椅,
简单的外形、独特的设计,华丽典雅,
拥有金色、黄铜元素的吊灯,
形成视觉的艺术张力,
使得整个客厅别有一番风味,
享受美食的同时,还能拥有美丽的心情。


设计师信息

多彩猫装饰设计

咨询热线:0527-81888563

我家按此效果装修多少钱?
m2
已有95名业主预约

热点更新查看更多

最新案例查看更多

预约报价

© 2017 北京多彩猫装饰工程设计有限公司 版权所有 苏ICP备2021022353号-1 技术支持:宿迁市科瑞特网络科技有限公司

地址:宿迁市富康路霸王商城东门南侧公交站台旁 客服电话:0527-81888563 15250750826