你好,欢迎光临北京多彩猫装饰工程设计有限公司 | 服务热线:0527-81888563 15250750826
您的当前位置:首页 » 德标工程 » 在施工地 » 详细内容
H恒开滨河城7#201

H恒开滨河城7#201

2018-03-25 09:53:39
  • 装修阶段:水电改造
  • 装修业主:冒先生
  • 装修户型:三居
  • 装修面积: m2
  • 装修风格:美式

北京多彩猫装饰宿迁分公司恭祝恒开滨河城业主冒先生福宅开工大吉

开工日期:2018-3-23

竣工日期:2018-6-12

施工面积:122

委托方式:半包

工程造价:8.5万


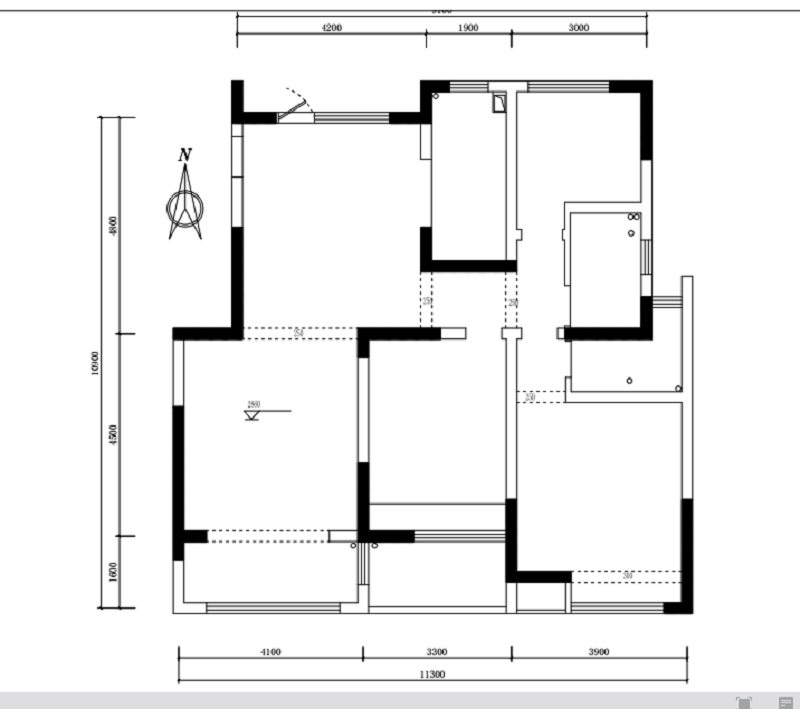
原始结构图




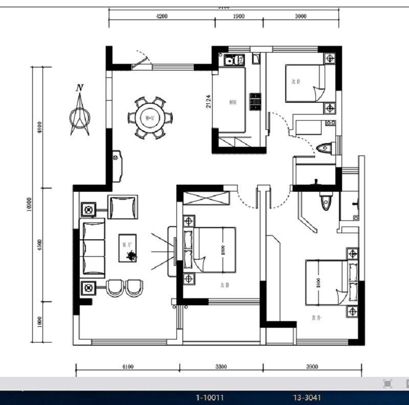
平面设计布置图











开工喽!期待装修效果哦!



水电改造

       


       


       

预约参观 专车接送
已有95名业主预约
« 上一目录:格林上郡204#402
» 下一目录:L隆城世家3#105

热点更新查看更多

最新案例查看更多

预约报价

© 2017 北京多彩猫装饰工程设计有限公司 版权所有 苏ICP备2021022353号-1 技术支持:宿迁市科瑞特网络科技有限公司

地址:宿迁市富康路霸王商城东门南侧公交站台旁 客服电话:0527-81888563 15250750826