你好,欢迎光临北京多彩猫装饰工程设计有限公司 | 服务热线:0527-81888563 15250750826
您的当前位置:首页 » 德标工程 » 在施工地 » 详细内容
翡翠蓝湾30#2-406

翡翠蓝湾30#2-406

2018-04-14 14:28:44
  • 装修阶段:泥瓦工程
  • 装修业主:陆先生
  • 装修户型:三居
  • 装修面积: m2
  • 装修风格:法式

北京多彩猫装饰宿迁分公司恭祝翡翠蓝湾陆总福宅开工大吉

工程期限:2018-4-13至2018-7-19

委托方式:半包

施工面积:160

工程价款:7·5万


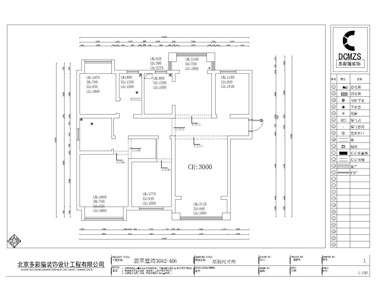
原始结构图

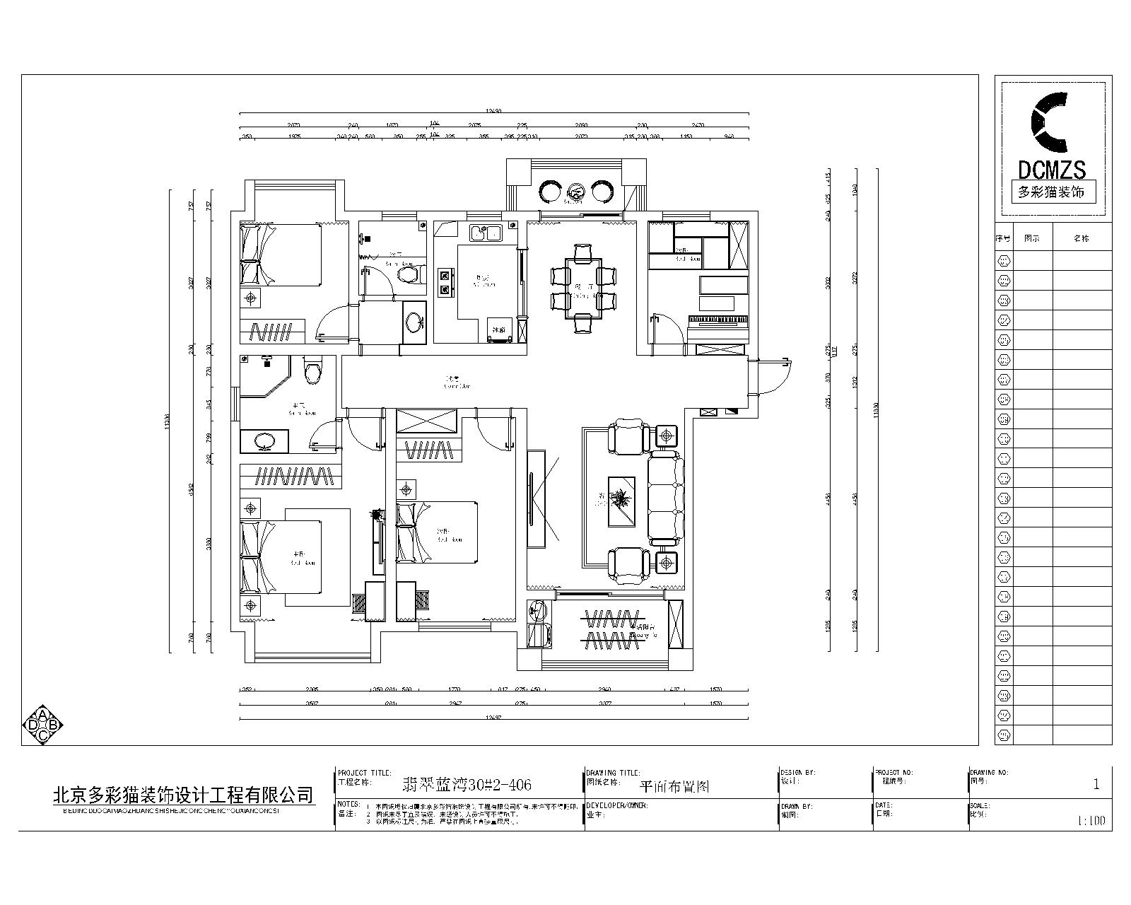
平面设计效果图


地面铺大理石,墙面贴花纹墙纸装饰,以白,黄,金三色系为主。家具款式优雅。

欧式的居室有的不只是豪华大气,更多的是惬意和浪漫。通过完美的曲线,精益求精的细节处理,带给家人不仅的舒适触感







开工啦!期待装修效果哦!

水电改造



泥瓦阶段

预约参观 专车接送
已有95名业主预约
« 上一目录:乐府兰亭1-1301
» 下一目录:金鹰7#1604

热点更新查看更多

最新案例查看更多

预约报价

© 2017 北京多彩猫装饰工程设计有限公司 版权所有 苏ICP备2021022353号-1 技术支持:宿迁市科瑞特网络科技有限公司

地址:宿迁市富康路霸王商城东门南侧公交站台旁 客服电话:0527-81888563 15250750826