你好,欢迎光临北京多彩猫装饰工程设计有限公司 | 服务热线:0527-81888563 15250750826
您的当前位置:首页 » 德标工程 » 在施工地 » 详细内容
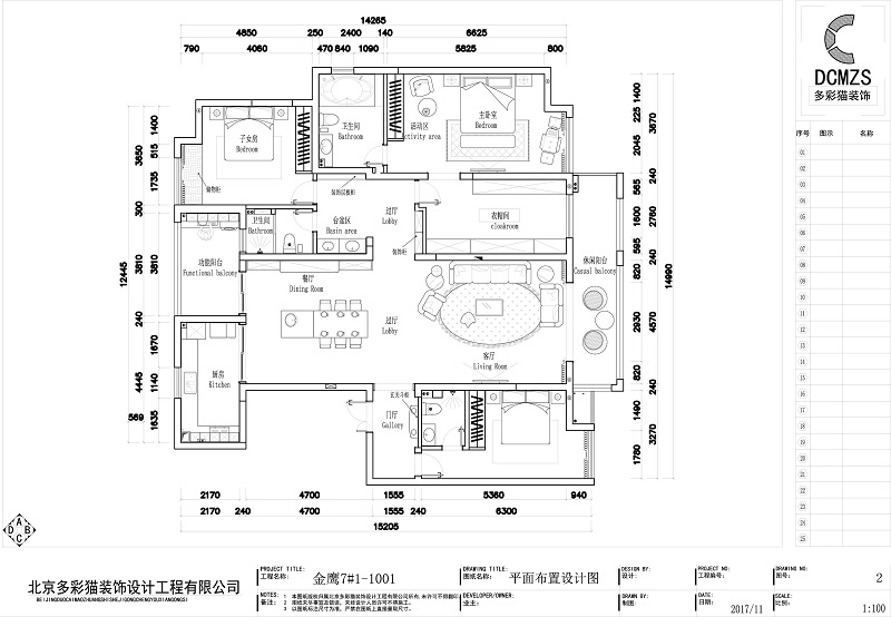
金鹰7#1001

金鹰7#1001

2018-06-06 13:18:27
  • 装修阶段:木工工程
  • 装修业主:万先生
  • 装修户型:四居
  • 装修面积: m2
  • 装修风格:中式


北京多彩猫装饰公司恭祝宿迁金鹰国际花园业主福宅开工大吉

工程期限:2018-5-4至2018-8-7

施工面积:226

委托方式:半包

工程造价:14万


开工大吉!期待装修效果!


原始结构图

平面设计图


开工大吉


墙体改动




回填





水电改造















木工阶段

















预约参观 专车接送
已有95名业主预约
« 上一目录:金鹰花园7#104
» 下一目录:隆城世嘉8#1605

热点更新查看更多

最新案例查看更多

预约报价

© 2017 北京多彩猫装饰工程设计有限公司 版权所有 苏ICP备2021022353号-1 技术支持:宿迁市科瑞特网络科技有限公司

地址:宿迁市富康路霸王商城东门南侧公交站台旁 客服电话:0527-81888563 15250750826