你好,欢迎光临北京多彩猫装饰工程设计有限公司 | 服务热线:0527-81888563 15250750826
您的当前位置:首页 » 德标工程 » 在施工地 » 详细内容
翰林国际10#101

翰林国际10#101

2018-08-28 16:31:26
  • 装修阶段:开工大吉
  • 装修业主:张先生
  • 装修户型:别墅
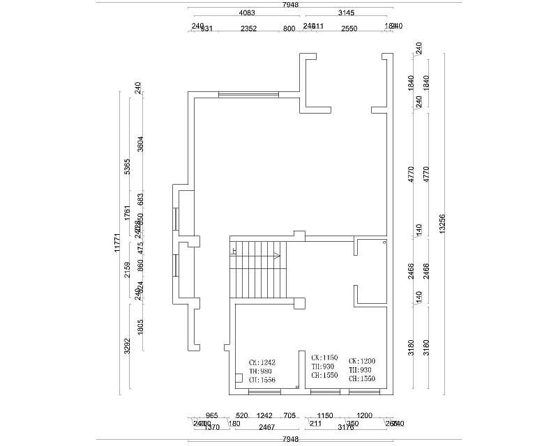
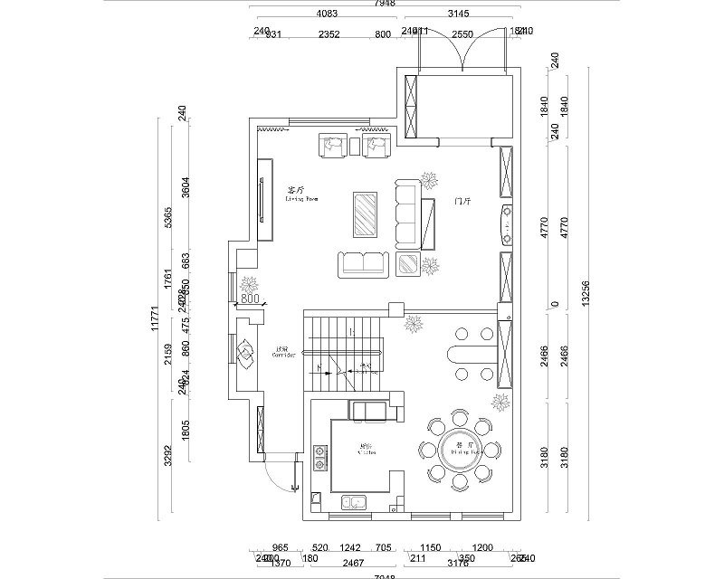
  • 装修面积:303 m2
  • 装修风格:新中式

北京多彩猫装饰恭祝翰林国际业主福宅开工大吉


工程地址:翰林国际10#101

施工面积:303平米

承包方式:半包

设计师:朱坤

工程期限:2018-7-31至2019-3-5


原始结构图

平面布置图


效果图


开工大吉!


预约参观 专车接送
已有95名业主预约
« 上一目录:金鹰国际花园7#1704
» 下一目录:马赛公馆2#505

热点更新查看更多

最新案例查看更多

预约报价

© 2017 北京多彩猫装饰工程设计有限公司 版权所有 苏ICP备2021022353号-1 技术支持:宿迁市科瑞特网络科技有限公司

地址:宿迁市富康路霸王商城东门南侧公交站台旁 客服电话:0527-81888563 15250750826