你好,欢迎光临北京多彩猫装饰工程设计有限公司 | 服务热线:0527-81888563 15250750826
您的当前位置:首页 » 德标工程 » 在施工地 » 详细内容
中远现代城15#505

中远现代城15#505

2017-07-13 11:14:29
  • 装修阶段:泥瓦工程
  • 装修业主:李先生
  • 装修户型:三居
  • 装修面积: m2
  • 装修风格:北欧

北京多彩猫装饰恭祝宿迁中远现代城业主李先生开工大吉

工程开工日期:2017-4-19

工程竣工日期:2017-6-19

施工面积:107

委托方式:半包

工程价款:5.5万




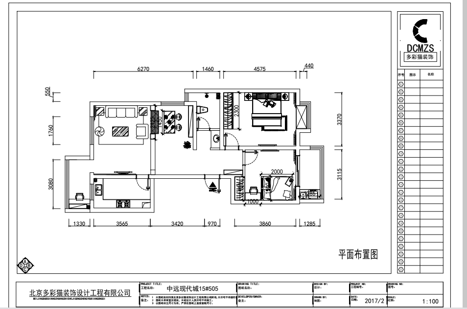
平面设计布置图


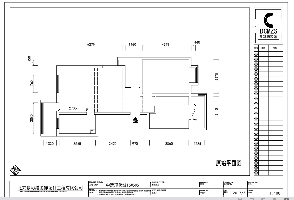
原始结构图



预约参观 专车接送
已有95名业主预约
« 上一目录:翡翠蓝湾25#808
» 下一目录:中远现代城

热点更新查看更多

最新案例查看更多

预约报价

© 2017 北京多彩猫装饰工程设计有限公司 版权所有 苏ICP备2021022353号-1 技术支持:宿迁市科瑞特网络科技有限公司

地址:宿迁市富康路霸王商城东门南侧公交站台旁 客服电话:0527-81888563 15250750826