你好,欢迎光临北京多彩猫装饰工程设计有限公司 | 服务热线:0527-81888563 15250750826
您的当前位置:首页 » 新闻动态 » 公司动态 » 详细内容
开工大吉!

发布时间:2018-07-27    被阅览数: 730 次 来自:北京多彩猫装饰工程设计有限公司

多彩猫装饰恭祝金鹰业主王女士福宅开工大吉!

北京多彩猫装饰设计公司宿迁分公司


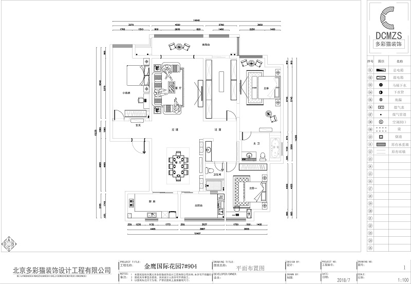
工程地址:宿迁金鹰国际花园

施工面积:226

承包方式:半包


每一家的开工仪式是必不可少哒!是一个美好家的开始!期待装修效果!


原始结构图


平面设计方案

3D效果图


扫码关注  精彩不断

北京多彩猫装饰设计公司宿迁分公司



热点更新查看更多

最新案例查看更多

预约报价

© 2017 北京多彩猫装饰工程设计有限公司 版权所有 苏ICP备2021022353号-1 技术支持:宿迁市科瑞特网络科技有限公司

地址:宿迁市富康路霸王商城东门南侧公交站台旁 客服电话:0527-81888563 15250750826