你好,欢迎光临北京多彩猫装饰工程设计有限公司 | 服务热线:0527-81888563 15250750826
您的当前位置:首页 » 新闻动态 » 公司动态 » 详细内容
金鹰国际花园新中式设计·儒雅温润 如诗如画!

发布时间:2018-05-16    被阅览数: 795 次 来自:北京多彩猫装饰工程设计有限公司

金鹰国际花园新中式设计·儒雅温润  如诗如画!

北京多彩猫装饰公司宿迁分公司



每当初夏季节,脑海中马上浮现意境歌诗:
弯成一弯的桥梁,倒映在这湖面上
你从那头瞧这看,月光下一轮美满
青石板的老街上,你我走过的地方
那段斑驳的砖墙,如今到底啥模样?



小区名称:宿迁金鹰国际花园

设计师:徐萌萌

建筑面积:226平米

工程造价:14·8万


客厅

走进客厅,泼墨山水随处可见,将正直、坚韧、洒脱的精神传遍每一个角落,你怎能不受感染?米色的墙壁散发着清凉的气息,哪怕空气灼热、心情低落,都能在这清凉的气息中,找到归属、找到安慰。

简约大气的地毯透露着主人不凡的品味。柔软、温暖,行走于地毯上,舒畅无比。


一张餐桌、几把座椅,品质生活一览无遗。在周末、在假期,邀请三五好友、备上几叠好菜,热情好客,把酒言欢。




淡泊明志,宁静致远,庄重与禅意是中国风的情志



原始结构图


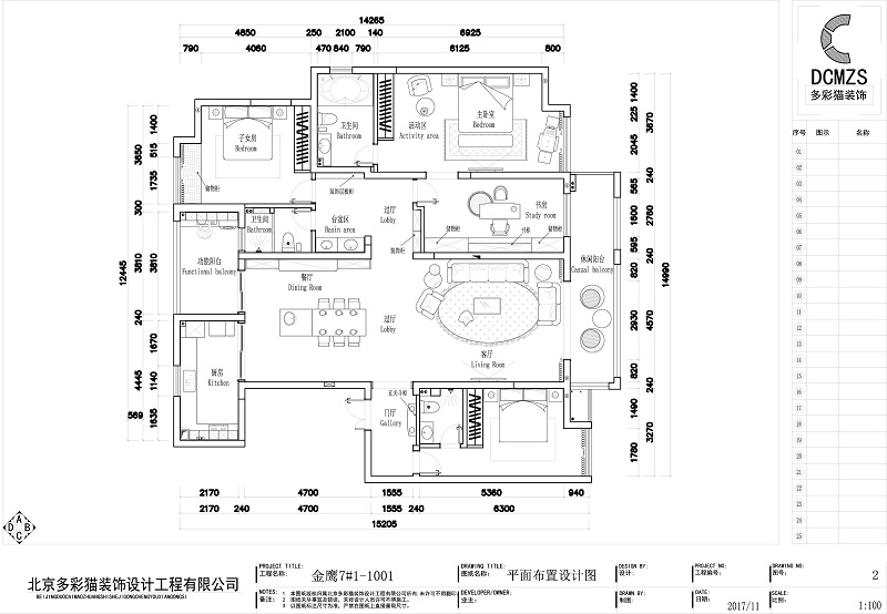
平面设计图

扫一扫看VR全景图

      

扫一扫关注多彩猫哦!

   

热点更新查看更多

最新案例查看更多

预约报价

© 2017 北京多彩猫装饰工程设计有限公司 版权所有 苏ICP备2021022353号-1 技术支持:宿迁市科瑞特网络科技有限公司

地址:宿迁市富康路霸王商城东门南侧公交站台旁 客服电话:0527-81888563 15250750826