你好,欢迎光临北京多彩猫装饰工程设计有限公司 | 服务热线:0527-81888563 15250750826
您的当前位置:首页 » 新闻动态 » 公司动态 » 详细内容
多彩猫恭祝东城水岸业主开工大吉

发布时间:2018-06-30    被阅览数: 779 次 来自:北京多彩猫装饰工程设计有限公司

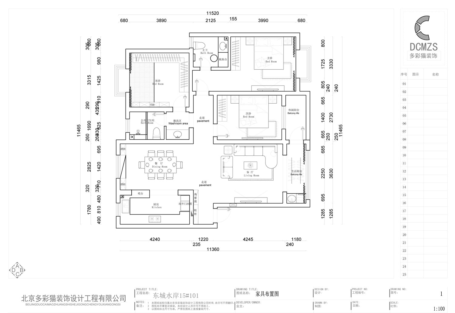
多彩猫恭祝宿迁东城水岸业主刘先生福宅开工大吉


小区地址:东城水岸

施工面积:128

户型:三室二厅二卫

承包方式:全包

开工日期:2018-6-25

竣工日期:2018-9-30


开工开工!仪式是必不可少哒!期待装修效果哦!



原始结构图

平面设计图

效果图

扫描二维码  关注多彩猫

装修热线:0527-81888563

北京多彩猫装饰设计公司宿迁分公司   装潢   装修  

热点更新查看更多

最新案例查看更多

预约报价

© 2017 北京多彩猫装饰工程设计有限公司 版权所有 苏ICP备2021022353号-1 技术支持:宿迁市科瑞特网络科技有限公司

地址:宿迁市富康路霸王商城东门南侧公交站台旁 客服电话:0527-81888563 15250750826