你好,欢迎光临北京多彩猫装饰工程设计有限公司 | 服务热线:0527-81888563 15250750826
您的当前位置:首页 » 新闻动态 » 公司动态 » 详细内容
多彩猫恭祝金色威尼斯业主府邸开工大吉

发布时间:2018-06-30    被阅览数: 770 次 来自:北京多彩猫装饰工程设计有限公司

多彩猫装饰恭祝宿迁金色威尼斯业主府邸开工大吉

北京多彩猫装饰设计公司宿迁分公司


工程地址:金色威尼斯

装修施工面积:200

户型:复式楼

承包方式:半包

工程造价:11万

设计师:刘杨

项目经理:梁深深


开工仪式开始喽!期待装修效果!

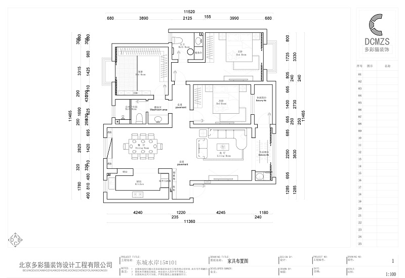
原始结构图

平面设置图

效果图

扫描二维码 关注多彩猫

装修热线:81888563

北京多彩猫装饰公司宿迁分公司   装修  装潢   设计

热点更新查看更多

最新案例查看更多

预约报价

© 2017 北京多彩猫装饰工程设计有限公司 版权所有 苏ICP备2021022353号-1 技术支持:宿迁市科瑞特网络科技有限公司

地址:宿迁市富康路霸王商城东门南侧公交站台旁 客服电话:0527-81888563 15250750826